Roanne, page 8
Aller à la navigation
Aller à la recherche
Poste de transformation électrique
-
Poste de transformation électrique 1931, coupe AA
-
Poste de transformation électrique 1931, coupe BB
-
Poste de transformation électrique 1931, coupe CC
-
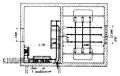
Poste de transformation électrique 1931, plan sous-sol
-
Poste de transformation électrique 1931, plan rez-de-chaussée
-
Poste de transformation électrique 1931, plan étage
-
Poste de transformation électrique 1931, implantation