Fichier:Paray 92935 03 RS.jpg
Aller à la navigation
Aller à la recherche
Taille de cet aperçu : 727 × 600 pixels. Autre résolution : 1 406 × 1 160 pixels.
Fichier d’origine (1 406 × 1 160 pixels, taille du fichier : 264 kio, type MIME : image/jpeg)
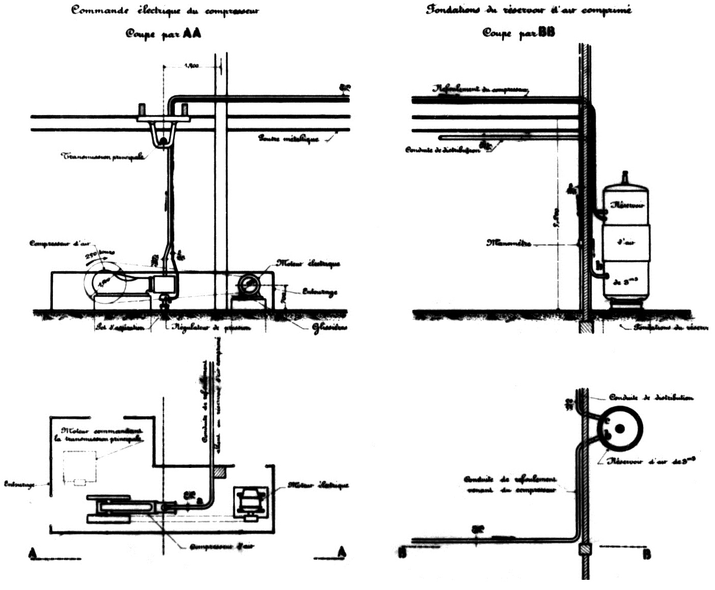
Document PLM
Collection Roland Sermet
Scan RS
Historique du fichier
Cliquer sur une date et heure pour voir le fichier tel qu'il était à ce moment-là.
| Date et heure | Vignette | Dimensions | Utilisateur | Commentaire | |
|---|---|---|---|---|---|
| actuel | 26 octobre 2015 à 13:41 | 1 406 × 1 160 (264 kio) | Roland (discussion | contributions) | Document PLM Collection Roland Sermet Scan RS |
Vous ne pouvez pas remplacer ce fichier.
Utilisation du fichier
La page suivante utilise ce fichier :