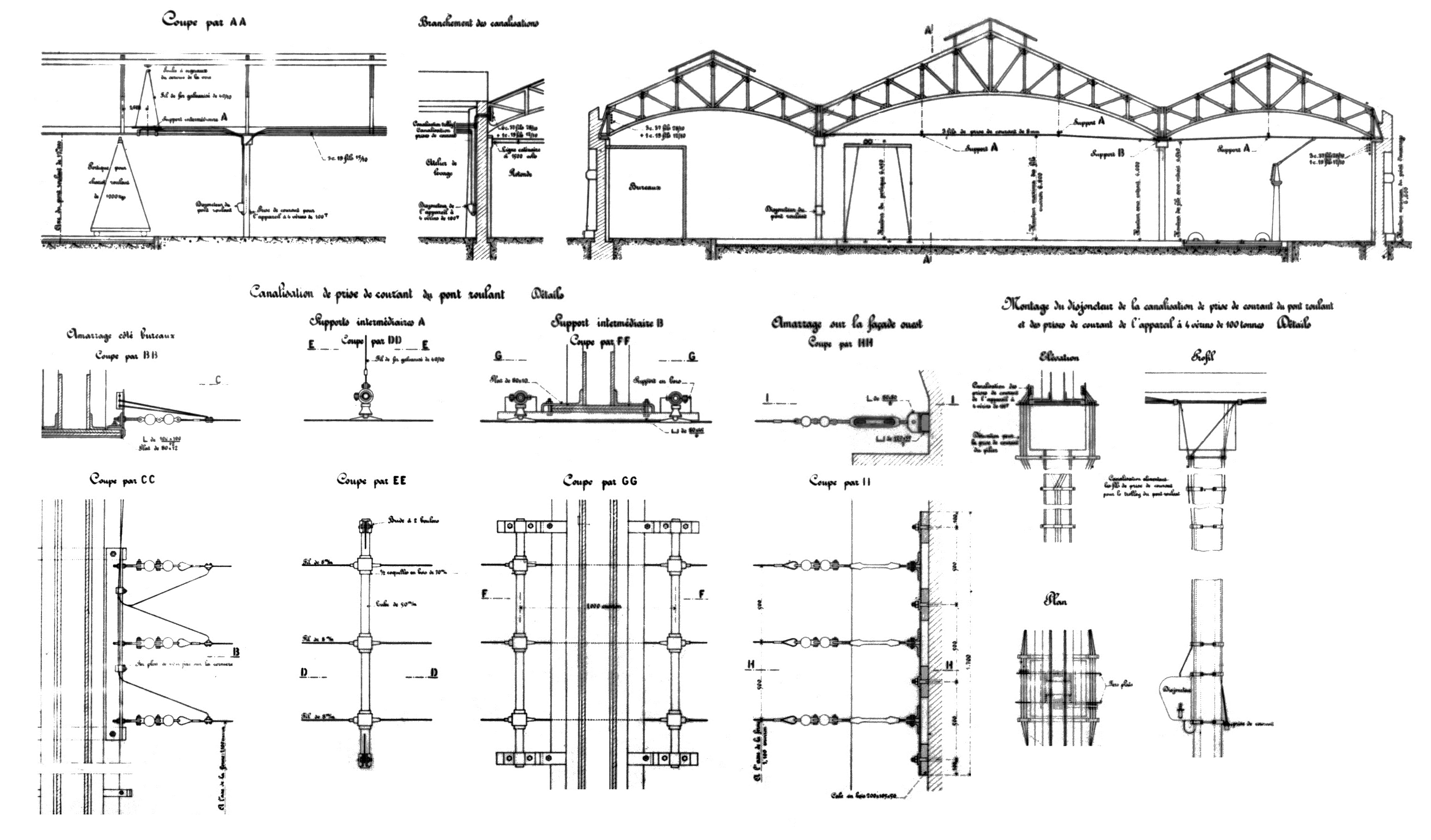
Fichier:Chambéry 107059 RS.jpg
Aller à la navigation
Aller à la recherche
Taille de cet aperçu : 800 × 470 pixels. Autre résolution : 3 412 × 2 004 pixels.
Fichier d’origine (3 412 × 2 004 pixels, taille du fichier : 1,02 Mio, type MIME : image/jpeg)
Document PLM
Collection Roland Sermet
Scan RS
Historique du fichier
Cliquer sur une date et heure pour voir le fichier tel qu'il était à ce moment-là.
| Date et heure | Vignette | Dimensions | Utilisateur | Commentaire | |
|---|---|---|---|---|---|
| actuel | 10 septembre 2015 à 12:58 | 3 412 × 2 004 (1,02 Mio) | Roland (discussion | contributions) | Document PLM Collection Roland Sermet Scan RS |
Vous ne pouvez pas remplacer ce fichier.
Utilisation du fichier
La page suivante utilise ce fichier :