Appareils de tournage pour locomotives, tenders et voitures longues
Généralités
Les appareils employés pour tourner les locomotives, tenders et voitures longues peuvent se classer en trois genres :
- plaques tournantes,
- ponts tournants,
- pont-plaques,
Plaques tournantes
Installés dans les dépôts, elles ont un diamètre de 14, 20 ou de 21 mètres au PLM (mais on trouve divers autres petits diamètres sur le plaques héritées des compagnies formatrices ou fusionnées). Actionnées soit par machine à vapeur, soit par moteur électrique, elles ont un grand débit.
Types de plaques
- La lettre S qui caractérise une plaque tournante est suivie de :
- la lettre E quand elle est commandée électriquement,
- un nombre caractérise le type selon l’époque, la provenance et les conditions particulières de construction,
- un numéro d’ordre qui identifie chaque plaque individuellement,
- par exemple, SE-31 n° 5 désigne la plaque tournante, commandée électriquement de type 31, n° 5.
- La plaque de numérotage des plaques tournantes est placée à l’intérieur, à l’endroit de la trappe, de façon à être facilement vue en ouvrant celle-ci.
- Plaques tournantes S-2,
- Plaques tournantes S-20,
- Plaques tournantes S-21,
- Plaques tournantes S-22,
- Plaques tournantes S-27,
- Plaques tournantes S-29,
- Plaques tournantes S-30,
- Plaques tournantes S-31,
Diagrammes et plans
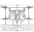
Figure 1 : plaque tournante de 21 m avec entraînement par engrenages :
-
Légende figure 1
-
Coupe par ABCDEFGH, demi élévation
-
Vue en plan
-
Ensemble du pivot
-
Coupe par CDEF, demi élévation
Figure 2 : plaque tournante de 21 m avec entraînement par adhérence :
-
Légende figure 2
-
Coupe par AB, demi élévation
-
Vue en plan
-
Ensemble du pivot
-
Coupe par IJKL, demi élévation
-
Figure 3, Galet moteur
-
Figure 4, Galet moteur,
Photos et cartes postales
Mécanisme d’entraînement
Le PLM utilise concurremment deux types d’entraînement de plaques tournantes, le mécanisme moteur agissant :
- sur une couronne à denture intérieure (figure 1),
- par adhérence de deux galets moteurs roulant sur un chemin de roulement circulaire (figure 2),
Dans l’un comme dans l’autre type, le pivot ne supporte aucune charge lorsque la plaque est vide. Seul le poids des charges roulantes se répartit entre le pivot et les galets extrêmes. La charpente et le pivot des deux types de plaques présentent une grande analogie de principe.
Le mécanisme est actionné soit par une machine à vapeur, soit par un moteur électrique avec machine à vapeur de secours. De plus, un treuil à bras sur les plaques tournantes entraînées par engrenages et deux sur les plaques entraînées par adhérence constituent un secours supplémentaire, mais qui ne permet d’obtenir que des mouvements assez lents tout en utilisant un personnel nombreux.
Les deux galets moteurs sont placés respectivement à chacune des extrémités de la plaque dans l’axe de la voie (figure 2). L’effort de propulsion est transmis à chacun d’eux par deux séries d’arbres et d’engrenages symétriques. Un frein à pédale, agissant sur un tambour calé sur un arbre intermédiaire, permet d’obtenir des arrêts précis de la plaque.
En cas d’avarie de la commande mécanique, on peut utilisant la commande à bras en embrayant les deux pignons K et débrayant les deux pignons L de façon à ne pas entraîner inutilement le mécanisme de propulsion par moteur (figure 2).
Chemin et organes de roulement
Le chemin de roulement des deux types de plaques est constitué par une couronne en acier forgé sur laquelle roulent les galets. Elle est boulonnée sur un soubassement circulaire en fonte fixé aux fondations par boulons. Les figures 3 et 4 montrent l’équipement d’un galet moteur, celui des galets porteurs est analogue mais ne comporte pas de ressort.
Ponts tournants
Installés en principe dans les gares de formation de trains ne comportant pas de dépôt, de 12, 14, 15, 17, 23 mètres de longueur, ils sont actionnés uniquement à bras par les deux hommes (équipe de la machine à tourner) ou commandés par un tracteur électrique. (figure 5)
Types de ponts tournants
- La lettre T qui caractérise un pont tournant est suivie de :
- la lettre E quand il est commandé électriquement,
- un nombre qui caractérise le type selon l’époque, la provenance et les conditions particulières de construction,
- un numéro d’ordre qui identifie chaque pont tournant individuellement,
- par exemple, TE-4 n° 7 désigne le pont tournant, commandé électriquement de type 4, n° 7. *La plaque de numérotage des ponts tournants est placée sur une des poutres principales.
- Ponts tournants T-1,
- Ponts tournants T-3,
- Ponts tournants T-4,
- Ponts tournants T-6,
- Ponts tournants T-8,
- Ponts tournants T-11,
- Ponts tournants T-12,
- Ponts tournants T-13,
Diagrammes et plans
Figure 5 à 9 : Pont tournant de 23 m
-
Coupe par EB, demi élévation
-
Demi coupe horizontale, demi plan
-
Figure 6, section au milieu de la charpente
-
Figure 7, pivot
Figure 8 : Tracteur à adhérence horizontale
-
Coupe par EE
-
Coupe par GG
-
Coupe par EE
Figure 9 : Pont de 23 m attelé à son tracteur
-
Coupe par FF, élévation
-
Vue en plan
-
Vue par bout
Photos et cartes postales
Charpente
La charpente est constituée par deux poutres en tôle et cornières (figure 6) qui supportent les bridge-rails de roulement des machines. Les poutres sont réunies, au milieu et aux extrémités, par des entretoises en fonte boulonnées. Dix entretoises intermédiaires en tôle et cornières maintiennent leur écartement. L’entretoise centrale transmet la charge au pivot. Quatre consoles en fonte placées en prolongement des entretoises extrêmes portent les paliers des galets d’équilibre. Un plancher en tôle striée bordé, de chaque coté, par une rampe évitant les chutes du personnel dans la fosse, permet de circuler sur le pont.
Pivot (figure 7)
Le pivot est emmanché dans un soubassement en fonte fixé par des boulons aux fondations. Il porte la totalité des poids du pont lui-même et des charges roulantes. Les galets d’équilibre ne servent qu’à empêcher le pont de basculer et ne reposent pas sur leur chemin de roulement pendant la rotation. L’effort nécessaire au tournage du pont est minimum et deux hommes suffisent pour tourner une machine du type le plus lourd si son centre de gravité est exactement placé au-dessus du pivot.
Immobilisation du pont
L’alignement des voies d’accès avec la voie du pont est assuré par deux mains d’arrêt placées aux extrémités dans l’axe de la voie et manoeuvrées par leviers depuis la plateforme. Ces leviers fournissent un point d’appui pour le virage du pont.
Calage
Le fait que les galets ne doivent pas porter sur leur chemin de roulement, pendant la rotation du pont chargé, exige :
- qu’un jeu de 5 mm, subsiste encore entre les galets et le chemin de roulement lorsque le pont a fléchi sous le poids de la locomotive la plus lourde.
- que le jeu à vide soit égal au précédent augmenté de 15 à 20 mm, quantité dont la poutre fléchit sous la charge.
Un tel jeu entre les galets et le chemin de roulement engendrerait des chocs destructeurs au moment de l’entrée des machines sur le pont, mais quatre verrous mobiles sont placés sous les extrémités des poutres. Deux timoneries commandant respectivement chacun des groupes de verrous d’une même extrémité du pont, et actionnées chacune par une manivelle, permettent de les introduire entre le dessous des poutres et des supports ad hoc répartis judicieusement dans la fosse, afin de limiter ce jeu à 2 mm. Les basculements du pont sont ainsi presque complètement supprimés au moment des mouvements de machines.
Chemin de roulement
Le chemin de roulement, qui, en principe, ne supporte aucune charge pendant le tournage et l’entrée ou la sortie des machines, est constitué par un rail du type normal de la voie cintré, fixé par des tire-fonds sur des longrines en bois.
Tracteurs pour ponts tournants
Il existe deux types de petit tracteur assurant la propulsion est attelé au pont à des extrémités :
- le premier roule sur le même rail que les galets du pont et utilise uniquement l’adhérence de ses galets moteurs sur la table du rail,
- le deuxième roule sur un rail circulaire indépendant de celui du pont et développe l’effort de propulsion nécessaire au moyen de deux galets à axes verticaux pressés par des ressorts contre les champs du champignon du rail.
La nécessité, qui n’existe pas pour les plaques, de caler le pont lors de l’entrée d’une machine, de le décaler pour permettre la rotation et de le caler à nouveau pour la sortie de la machine, constitue une grosse sujétion qui limite le débit, et dont l’inobservation serait très préjudiciable à la conservation du pont.
Tracteur à adhérence horizontale (figures 8 et 9)
Il comprend :
- un bâti en fonte prolongé par une queue en tôle et des cornières qui le relie au pont tournant près du pivot,
- un moteur électrique actionnant, par un train d’engrenages cylindriques, un arbre intermédiaire portant un embrayage à griffes et une poulie de frein,
- un pignon calé sur l’arbre intermédiaire attaque deux engrenages calés respectivement sur les axes des deux galets moteurs qui roulent sur le même chemin de roulement que les galets d’équilibre du pont.
- un treuil à bras commandé par deux manivelles permet d’actionner les galets moteurs par l’intermédiaire de l’embrayage à griffes, en cas de défaillance du moteur ou de la fourniture d’électricité.
- un frein à deux sabots, actionné par pédale, agit sur la poulie de l’arbre intermédiaire.
- une barre d’attelage articulée relie le tracteur au pont vers l’extrémité tout en permettant à ce dernier de basculer légèrement sur son pivot. Une cabine protège les appareils. Le machiniste se tient dans la cabine et son poste de manoeuvre est placé dans le voisinage des leviers de commande de la main-d’arrêt et du verrou de calage de l’extrémité correspondante du pont. Il peut donc les manoeuvrer sans abandonner son poste.
La prise de courant se fait au moyen de trois frotteurs glissant sur trois cercles en profilés d’acier concentriques au pivot, portés par des isolateurs de forme appropriée. Le moteur électrique est commandé par un contrôleur à deux sens de marche qui maintient toujours une certaine résistance dans le circuit du rotor, en vue d’éviter les conséquences de manoeuvres maladroites.
Tracteur à adhérence verticale
Ce type de tracteur est la reproduction d’un engin mis au point par la Compagnie des Chemins de fer de l’Est.
Ponts plaques
Ils ont 21, 23 ou 24 mètres de longueur, la charge est répartie entre le pivot et les galets comme dans une plaque et la fosse reste découverte comme pour un pont.
Le pont-plaque peut recevoir un équipement moteur mais il permet à deux hommes de tourner facilement à bras une locomotive du type le plus lourd. Ce résultat a été obtenu par un large emploi des roulements à billes et à rouleaux : le pivot est monté sur billes et les axes des galets tournent dans des paliers à rouleaux.
Pour réduire la profondeur de la fosse, la hauteur des poutres a été réduite au minimum. La figure 14 permet de comparer les silhouettes des deux fosses du pont de 23 mètres et du pont-plaque de même longueur.
Types de ponts-plaques
- Les lettres TS qui caractérisent un pont-plaque sont suivies de :
- la lettre E quand il est commandé électriquement,
- un nombre qui caractérise le type selon l’époque, la provenance et les conditions particulières de construction,
- un numéro d’ordre qui identifie chaque pont-plaque individuellement,
- Par exemple, TSE-3 n° 2 désigne le pont-plaque, commandé électriquement de type 3, n° 2. *La plaque de numérotage des ponts-plaques est placée sur une des poutres principales.
- Ponts-plaques TS-1,
- Ponts-plaques TS-2,
- Ponts-plaques TS-3,
- Ponts-plaques TS-4,
- Ponts-plaques TS-13,
Diagrammes et plans
Photos et cartes postales
Equipement moteur
Il est conçu de manière à résister à des manoeuvres maladroites, voire brutales. La prise de courant, qui se fait par l’intérieur du pivot creux, est complètement protégée contre tout contact accidentel, sans aucun organe apparent mais reste facilement accessible pour l’entretien et les réparations.
Charpente
Elle est constituée par deux poutres continues en tôle et cornières assemblées (figure 15) qui supportent les rails de roulement des locomotives. Ces rails sont du type courant de 48 kg au mètre. Les poutres sont réunies entre elles par dix-huit entretoises en profilés. Les deux entretoises situées de part et d’autre du milieu du pont, beaucoup plus robustes que les autres, transmettent les charges au pivot.
Les poutres principales assemblées à chaque extrémité par de larges goussets avec des chevêtres circulaires en tôle et cornières reposent chacun sur deux galets par l’intermédiaire de paliers à rouleaux.
Un plancher en tôle striée, bordé de chaque côté par une rampe, permet de circuler sur le pont.
Le pivot comprend :
- un soubassement a en acier moulé reposant sur le massif de fondations par l’intermédiaire d’une feuille de plomb b de cinq millimètres d’épaisseur,
- une butée à billes SKF,
- un chapeau du pivot c en acier moulé dont le rôle est de répartir sur les billes les charges qui lui sont transmises. Ce chapeau est centré sur le soubassement par l’intermédiaire d’une couronne d en bronze, afin de limiter les effets destructeurs que pourraient avoir sur les billes, les chocs à l’entrée et les coups de frein appliqués aux locomotives au moment où elles s’arrêtent sur le pont,
- deux balanciers e orientés dans la direction de l’axe longitudinal du pont, reposant par leur milieu sur le chapeau du pivot c et reliés à leurs extrémités par quatre boulons de suspension f aux entretoises milieu des poutres principales. **Un carter facilement démontable permet à un observateur couché sur une plateforme aménagée entre les poutres, de vérifier l’état du roulement à billes soit au repos, soit pendant la rotation du pont.
- la prise de courant se fait au moyen de trois frotteurs g sur trois bagues h placées entre les balanciers e et reliées aux trois conducteurs d’un câble armé traversant la fondation. Le tout est couvert par un capot amovible i, surmonté par une tôle formant parapluie J afin d’éviter toute introduction d’eau dans la prise de courant.
- une trappe K aménagée dans le plancher du pont au-dessus du pivot permet un accès aisé aux organes de réglage de la suspension et de la prise de courant.
Paliers à rouleaux
Les chevêtres d’extrémité du pont reposent sur les galets par l’intermédiaire de paliers à rouleaux. Ces paliers, au nombre de huit, sont identiques et constitués de la manière suivante :
- la bague intérieure du roulement est enfilée sur l’extrémité de l’axe du galet et maintenue par un écrou,
- la bague extérieure est ajustée dans le corps même du palier et maintenue, dans le sens longitudinal, par un bouchon fixé par quatre goujons.
- la charge est transmise au corps du palier par deux paires de boulons, les écrous d’une même paire reposent sur le palier par l’intermédiaire d’un petit balancier qui rend la transmission de la charge aux rouleaux indépendante d’un serrage inégal des écrous des deux boulons.
- le corps du palier peut se déplacer verticalement entre deux guides fixés aux poutrelles d’extrémité du pont. Deux appendices de forme appropriée, venus de fonderie avec le corps du palier, s’engagent dans des rainures pratiquées dans les guides empêchant tout déplacement du palier dans le sens de son axe ou perpendiculairement à celui-ci dans le plan horizontal, mais permettant à cet axe de prendre sans inconvénient une légère inclinaison par rapport à l’horizontale.
- des butées axiales fixées aux bouchons des paliers absorbent les poussées longitudinales qui peuvent se produire du fait d’une orientation défectueuse des galets ou bien des chocs à l’entrée et de coups de frein appliqués aux machines qui s’arrêtent sur le pont.
Les rouleaux sont donc toujours chargés d’une façon symétrique par rapport au milieu de leur longueur, qu’ils sont préservés de tout coincement pouvant provenir d’un léger défaut d’horizontalité de l’axe du galet et qu’ils sont soustraits à tout effort longitudinal.
Des garnitures en feutre empêchent la poussière de pénétrer à l’intérieur des paliers.
Mécanisme
Les ponts-plaques peuvent être manoeuvrés indifféremment soit à bras, soit au moteur.
Commande au moteur
- Un moteur électrique triphasé à rotor bobiné, de cinq chevaux attaque l’un des galets avec une démultiplication appropriée et permet d’effectuer un tour complet du pont chargé d’une locomotive en deux minutes, arrêt et démarrage compris. Un embrayage à griffes permet d’actionner le galet propulseur soit par le moteur électrique, soit par la commande à bras. Un frein à bande, actionné par une pédale et agissant dans les deux sens de marche, permet d’obtenir des arrêts précis.
- Un contrôleur à deux sens de marche commande le fonctionnement du moteur. Il est établi de manière à laisser toujours subsister une certaine résistance dans le circuit du rotor, ce qui permet d’éviter les conséquences d’une manoeuvre maladroite, démarrage brutal, changement du sens de rotation pendant la marche...
- Il n’est donc pas absolument indispensable d’affecter un agent spécialisé à la conduite du pont. Pour éviter toute hésitation dans les manoeuvres, le contrôleur est disposé de façon que l’extrémité du pont sur laquelle il est fixé se dirige dans le même sens que celui dans lequel on a déplacé la manivelle.
Commande à bras
- Deux treuils de commande à bras permettent, en cas de manque de courant ou d’avarie aux organes de la commande électrique, de tourner les locomotives à bras d’homme.
- L’un des treuils est conjugué au moyen de l’embrayage à griffes avec la commande électrique et attaque le même galet que cette dernière. Il permet, en l’actionnant par deux hommes seulement, de tourner une locomotive bout pour bout en un peu moins de cinq minutes.
- L’autre treuil, complètement indépendant du premier, attaque un des galets placés à l’autre extrémité du pont et du même côté de l’axe longitudinal que la commande électrique, la démultiplication est moins grande que pour le premier et permet de tourner une locomotive bout pour bout en deux minutes quarante cinq secondes environ avec quatre hommes ou trois minutes trente secondes environ avec trois hommes. La présence de ce deuxième treuil à faible démultiplication constitue un secours très efficace en cas de défaillance du moteur ou de la fourniture d’énergie, dans les installations à grand débit où l’on n’est pas à court de personnel, l’usage du treuil à grande démultiplication étant réservé aux installations qui ne disposent ni d’énergie électrique ni de personnel autre que celui des machines.
Verrouillage
L’alignement de la voie du pont avec les voies d’accès est assuré par deux verrous coulissant horizontalement placés aux extrémités du pont dans l’axe de la voie, et que l’on introduit au moyen de leviers placés près du poste de manoeuvre dans des gâches disposées entre les rails des voies d’accès. Les verrous ont un jeu latéral de deux millimètres seulement dans les gâches. Le pont doit être arrêté très exactement en position, au moyen du frein à pédale, avant de le verrouiller. On évite ainsi les effets destructeurs qui se produiraient si les verrous avaient assez de jeu dans leurs gâches pour qu’on puisse les y introduire pendant que le pont est encore en mouvement.
Chemin de roulement
Le chemin de roulement est constitué par un rail courant du même type que celui du pont lui-même, cintré à la demande, reposant sur des sellettes en acier moulé et tirefonné sur les fondations.
En raison des facilités de manoeuvre que présentent les ponts-plaques, le PLM a étudié la transformation sur les mêmes principes des ponts de 23 mètres existants (La figure 17 représente un pont transformé).
Le pivot à grain en acier est conservé sans modification et les galets d’équilibre sont remplacés par d’autres munis de paliers à rouleaux. Les extrémités du pont sont modifiées pour résister aux efforts qui seront transmis aux galets et un nouveau chemin de roulement est prévu.
Les ponts-tournants ainsi équipés peuvent être mus soit exclusivement à bras soit par un moteur électrique porté par le pont soit enfin par l’un ou l’autre des types de tracteurs.
Les fosses équipées des ponts modifiés peuvent également recevoir sans modifications un pont ordinaire.
Sources de documentation
- SNCF, Région Sud-Est. Instruction de service, série Matériel et Traction, sous-série outillage et mobilier, n° 1 du 6 avril 1939, annule et remplace l’Instruction 311 (NS) édition de 1930),
- PLM 1937. Etat général des locomotives, tenders, locotracteurs et appareils divers,
- RGCF novembre 1890 : Plaques et ponts tournants (IPLM), pages 225 à 234, planche 25
- RGCF avril 1927 : Appareils de tournage PLM Par M. HUBERT, Ingénieur principal du matériel à la compagnie du PLM,
- RGCF août 1932 : Plaques tournantes à poutres principales subdivisées, pages 148 à 151,